MONTE GENTILE

Ariccia (Roma)

Rif: 1166
Condividi Linkedin Whatsapp Stampa
€ 730.000
Villa
241 Mq
10 Vani
Giardino
Classe energetica A4
4 Camere
3 Bagni
Garage
ARICCIA - MONTE GENTILE
Proponiamo in vendita una splendida villa di nuova costruzione, pensata per chi desidera vivere nel rispetto dell'ambiente senza rinunciare al comfort. Progettata in Classe A4, garantisce consumi energetici ridotti rispetto a costruzioni tradizionali, grazie a tecnologie d'avanguardia: riscaldamento a pavimento con pompa di calore, impianto fotovoltaico da 6 kW, solare termico Daikin, no gas. Realizzata con materiali ad alta efficienza termica, la villa offre ambienti salubri, silenziosi e perfettamente isolati, dotati di serramenti triplo vetro, pavimenti in parquet, bagni con sanitari Catalano e rubinetterie Cristina SPA, videocitofono smart, garage motorizzato Hormann e cancello elettrico BFT. Ogni dettaglio, dagli impianti alla scelta dei rivestimenti, riflette la qualità costruttiva e il rispetto delle più recenti normative europee in materia di sostenibilità e sicurezza.
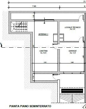
La villa si sviluppa su tre livelli, al piano terra troviamo un ampio salone, cucina abitabile, bagno, lavanderia e ampi portici che collegano al giardino; al piano primo vi sono quattro camere, due bagni e tre balconi; al piano seminterrato troviamo garage, cantina e locale tecnico. Completa la proprietà il giardino di circa 2500,00 mq con annessa zona parcheggio.
GIAL è un' agenzia con una esperienza consolidata, si occupa dal 1974 di compravendite e locazioni immobiliari. L'intero gruppo opera ogni giorno con lo sguardo rivolto al futuro e alle crescenti esigenze del mercato. L'evoluzione del mercato immobiliare e una esigente aspettativa della clientela spingono inoltre Gial Immobili a porre quotidianamente un attenzione particolare al tema della formazione al fine di garantire un adeguata competenza ai professionisti del gruppo.

Dettaglio immobile

Contratto Vendita
Rif 1166
Prezzo € 730.000
Provincia Roma
Comune Ariccia
Indirizzo Viale dei Lauri 40
Superficie 241 mq
Vani 10
Camere 4
Bagni 3
Classe energetica A4 (DL 90/2013)
Riscaldamento autonomo
Condizioni nuova costruzione
Anno di costruzione 2025
Ascensore no
Garage singolo si
Cantina si
Giardino
Cucina abitabile
Balcone si
Terrazza si

Consistenze

Descrizione Superficie Sup. comm.
Principali
Immobile - piano terra 241 Mq 241 Mqc
Totale 241 Mqc

Richiedi maggiori informazioni

Autorizzazione al trattamento dei dati personali+
Dichiaro di aver letto l'informativa sulla privacy ed accetto le condizioni d'utilizzo del servizio.
Riempi il campo con il codice riportato nell'immagine*
Codice Captcha
FIMAA
Chiamaci Contattaci