MARINO - CENTRO STORICO

Marino (Roma) - zona Centro

Rif: 1167
Condividi Linkedin Whatsapp Stampa
€ 75.000
Appartamento
55 Mq
2 Vani
Classe energetica G
1 camera
1 bagno
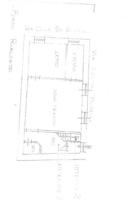
Nel cuore del centro storico di Marino e nelle vicinanze del corso principale, proponiamo delizioso appartamento al piano rialzato con affaccio primo piano, composto da ingresso, soggiorno, cucinotto, camera e bagno. Termoautonomo. Ottimo per uso investimento.
GIAL è un' agenzia con una esperienza consolidata, si occupa dal 1974 di compravendite e locazioni immobiliari. L'intero gruppo opera ogni giorno con lo sguardo rivolto al futuro e alle crescenti esigenze del mercato. L'evoluzione del mercato immobiliare e una esigente aspettativa della clientela spingono inoltre Gial Immobili a porre quotidianamente un attenzione particolare al tema della formazione al fine di garantire un adeguata competenza ai professionisti del gruppo.

Dettaglio immobile

Contratto Vendita
Rif 1167
Prezzo € 75.000
Provincia Roma
Comune Marino
Zona Centro
Indirizzo Via Costa Pompili 9
Superficie 55 mq
Vani 2
Camere 1
Bagni 1
Classe energetica G (DL 90/2013)
Riscaldamento autonomo
Ascensore no
Cucina semiabitabile

Consistenze

Descrizione Superficie Sup. comm.
Principali
Immobile - piano rialzato 55 Mq 55 Mqc
Totale 55 Mqc

Richiedi maggiori informazioni

Autorizzazione al trattamento dei dati personali+
Dichiaro di aver letto l'informativa sulla privacy ed accetto le condizioni d'utilizzo del servizio.
Riempi il campo con il codice riportato nell'immagine*
Codice Captcha
FIMAA
Chiamaci Contattaci