Ariccia

Ariccia (Roma)

Rif: 1206
Condividi Linkedin Whatsapp Stampa
€ 178.000
Appartamento
130 Mq
4 Vani
Classe energetica G
3 Camere
2 Bagni
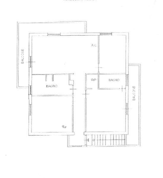
Via della Costa, proponiamo in vendita un appartamento al primo piano con ingresso indipendente composto da soggiorno con cucina a vista, due camere matrimoniali di cui una con bagno privato, una cameretta, un ulteriore bagno e due balconi. L'immobile si presenta in ottimo stato manutentivo e data la triplice esposizione risulta essere particolarmente luminoso oltre a godere di un suggestivo affaccio panoramico verso il mare. Ottima anche la posizione, essendo a breve distanza da tutti i servizi ma in un contesto tranquillo e rilassante. GIAL è un' agenzia con una esperienza consolidata, si occupa dal 1974 di compravendite e locazioni immobiliari. L'intero gruppo opera ogni giorno con lo sguardo rivolto al futuro e alle crescenti esigenze del mercato. L'evoluzione del mercato immobiliare e una esigente aspettativa della clientela spingono inoltre Gial Immobili a porre quotidianamente un attenzione particolare al tema della formazione al fine di garantire un adeguata competenza ai professionisti del gruppo.

Dettaglio immobile

Contratto Vendita
Rif 1206
Prezzo € 178.000
Provincia Roma
Comune Ariccia
Indirizzo Via della Costa 41
Superficie 130 mq
Vani 4
Camere 3
Bagni 2
Classe energetica G (DL 90/2013)
Piano 1
Riscaldamento autonomo
Condizioni ottime condizioni
Anno di costruzione 1995
Ascensore no
Cucina a vista
Balcone si

Consistenze

Descrizione Superficie Sup. comm.
Principali
Immobile - 1° piano 130 Mq 130 Mqc
Totale 130 Mqc

Planimetrie

Richiedi maggiori informazioni

Autorizzazione al trattamento dei dati personali+
Dichiaro di aver letto l'informativa sulla privacy ed accetto le condizioni d'utilizzo del servizio.
Riempi il campo con il codice riportato nell'immagine*
Codice Captcha
FIMAA
Chiamaci Contattaci