Villa Trifamiliare - Albano Laziale

Albano Laziale (Roma)

Rif: 1213
Condividi Linkedin Whatsapp Stampa
€ 398.000
Villa plurifamiliare
145 Mq
5 Vani
Giardino
Classe energetica A1
3 Camere
3 Bagni
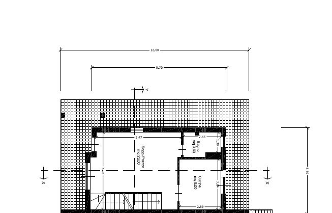
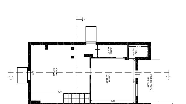
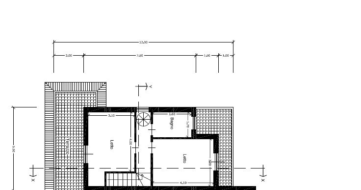
ALBANO LAZIALE -Proponiamo in vendita una splendida villa angolare in tri-familiare, situata all'interno di un residence elegante e curato, a pochi passi dal centro. Un'abitazione ideale per chi desidera modernità, comfort e ampi spazi, grazie anche alla recente ristrutturazione con interventi di efficientamento energetico – Classe A1. La villa si sviluppa su tre livelli più mansarda ed è circondata da un giardino privato di circa 150 mq, portico con accesso diretto dal soggiorno: lo spazio perfetto per momenti di relax all'aria aperta. Al PIANO TERRA troviamo un soggiorno, cucina abitabile, bagno e balcone; PIANO PRIMO composta da due camere da letto matrimoniali, entrambe con terrazzo e bagno.; PIANO MANSARDA ampio ambiente versatile, ideale come terza camera, studio o area relax; PIANO SEMINTERRATO ampia sala hobby luminosa, lavanderia e ripostiglio, con doppio accesso. La posizione angolare garantisce all'immobile una tripla esposizione assicurando luminosità in ogni ambiente. Completano la proprietà due posti auto nell'area condominiale. GIAL un' agenzia con una esperienza consolidata, si occupa dal 1974 di compravendite e locazioni immobiliari. L'intero gruppo opera ogni giorno con lo sguardo rivolto al futuro e alle crescenti esigenze del mercato. L'evoluzione del mercato immobiliare e una esigente aspettativa della clientela spingono inoltre il Gruppo Immobiliare Agenzia Laziale a porre quotidianamente un attenzione particolare al tema della formazione al fine di garantire un adeguata competenza ai professionisti del gruppo.

Dettaglio immobile

Contratto Vendita
Rif 1213
Prezzo € 398.000
Provincia Roma
Comune Albano Laziale
Indirizzo Via Orti Pompei 19
Superficie 145 mq
Vani 5
Camere 3
Bagni 3
Classe energetica A1 (DL 90/2013)
Riscaldamento autonomo
Condizioni ottime condizioni
Anno di costruzione 2000
Ascensore no
Cantina si
Giardino
Cucina abitabile
Balcone si
Terrazza si
Mansarda si

Consistenze

Descrizione Superficie Sup. comm.
Principali
Immobile - piano terra 145 Mq 145 Mqc
Totale 145 Mqc

Planimetrie

Richiedi maggiori informazioni

Autorizzazione al trattamento dei dati personali+
Dichiaro di aver letto l'informativa sulla privacy ed accetto le condizioni d'utilizzo del servizio.
Riempi il campo con il codice riportato nell'immagine*
Codice Captcha
FIMAA
Chiamaci Contattaci