ALBANO LAZIALE

Albano Laziale (Roma)

Rif: 1232
Condividi Linkedin Whatsapp Stampa
€ 99.000
Appartamento
115 Mq
4 Vani
Classe energetica G
3 Camere
1 bagno
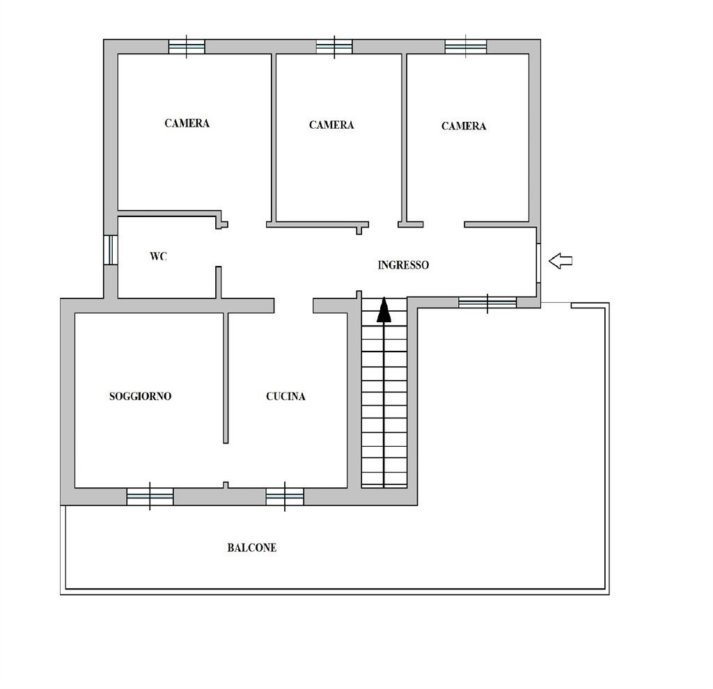
Proponiamo in vendita immobile con ingresso indipendente. L'appartamento si compone da ampio salone, cucina abitabile, tre camere da letto e un bagno. Completano la proprietà terrazzo ampio e panoramico, due cantine e un terreno. DA RISTRUTTURARE. GIAL è un' agenzia con una esperienza consolidata, si occupa dal 1974 di compravendite e locazioni immobiliari. L'intero gruppo opera ogni giorno con lo sguardo rivolto al futuro e alle crescenti esigenze del mercato. L'evoluzione del mercato immobiliare e una esigente aspettativa della clientela spingono inoltre Gial Immobili a porre quotidianamente un attenzione particolare al tema della formazione al fine di garantire un adeguata competenza ai professionisti del gruppo.

Dettaglio immobile

Contratto Vendita
Rif 1232
Prezzo € 99.000
Provincia Roma
Comune Albano Laziale
Indirizzo Via Montagnano 180
Superficie 115 mq
Vani 4
Camere 3
Bagni 1
Classe energetica G (DL 90/2013)
Piano 1
Riscaldamento autonomo
Condizioni da ristrutturare
Anno di costruzione 1990
Ascensore no
Cantina si
Cucina abitabile
Balcone si
Terrazza si

Consistenze

Descrizione Superficie Sup. comm.
Principali
Immobile - 1° piano 115 Mq 115 Mqc
Totale 115 Mqc

Planimetrie

Richiedi maggiori informazioni

Autorizzazione al trattamento dei dati personali+
Dichiaro di aver letto l'informativa sulla privacy ed accetto le condizioni d'utilizzo del servizio.
Riempi il campo con il codice riportato nell'immagine*
Codice Captcha
FIMAA
Chiamaci Contattaci